Property Details
Basic Information
- Property SubType: Single Family Residence
- MLS Number: 1636994
- Mls Status: Active
- Acreage: 12.75
Property
- Square Feet: 3,000
- Year Built: 2002
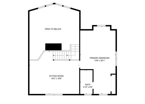
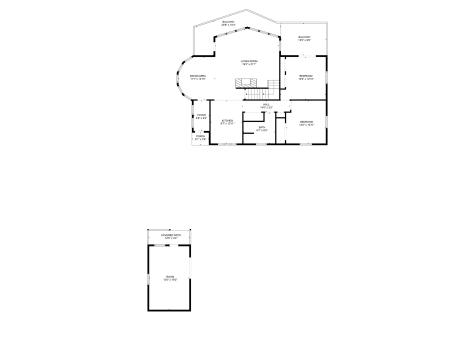
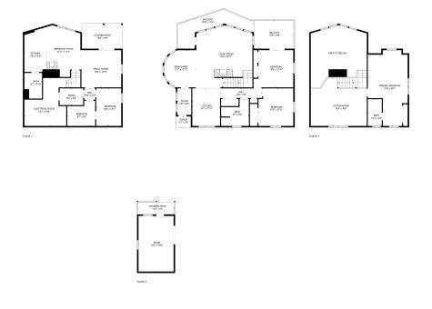
- Rooms: 12
- Roof: Metal
- Building Construction: Log, Log Siding
Location
- Town: Kingfield
- County: Franklin
- State: ME
- Zip: 04947
Interior Features
Beds/Baths
- Bedrooms: 5
Basement
- Basement: Interior, Finished, Full, Walk-Out Access
Other
- Fireplace: Yes
- Fireplaces Total: 2
- Flooring: Carpet, Tile, Wood
Exterior Features
Features
- Parking Features: Paved,5 - 10 Spaces
- Driveway: Paved
- Road Frontage: Gravel/Dirt, Private
- Exterior: Log Siding
Utilities and Appliances
Utilities and Appliances
- Heat System: Oil, Wood, Baseboard, Direct Vent Furnace, Hot Water, Radiant, Zoned
- Heating Fuel: Oil, Wood
- Sewer: Private Sewer, Septic Design Available
Other Details
Finance
- Taxes: $10,414
- Tax Year: 2024
Water
- Water Source: Private, Well

